New Build, Canon Ridge Phase 2

10308 SW 50st Street, Mustang, OK

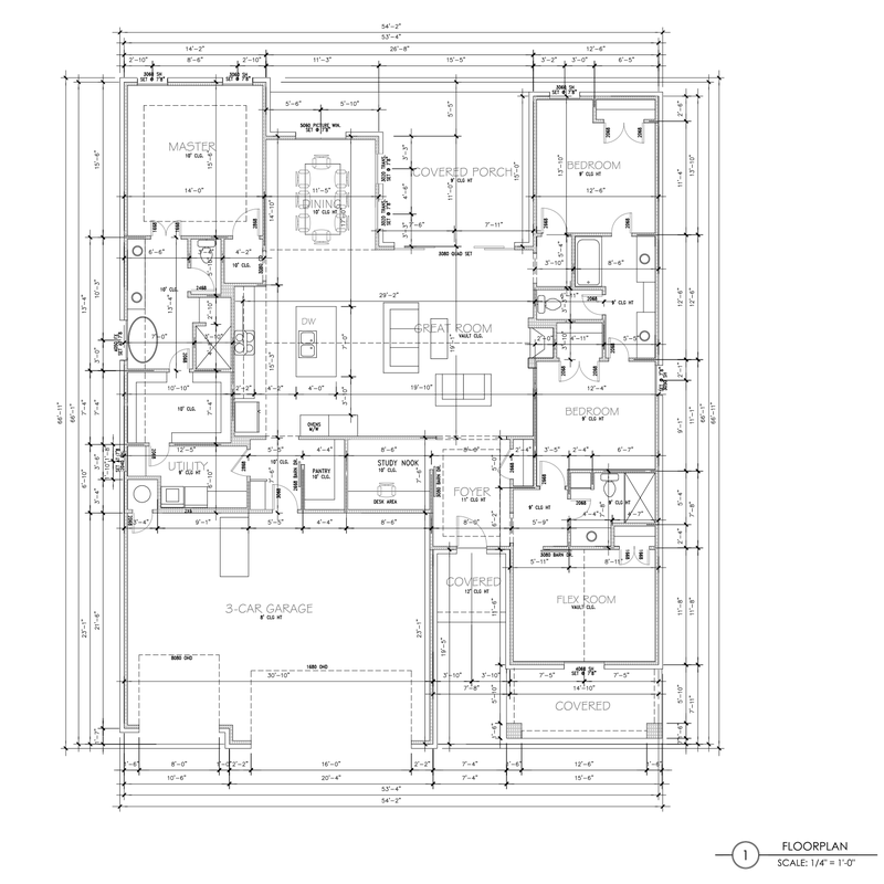
Discover refined design and comfort in this 2,261 sq. ft. custom home located at 10308 SW 50th in Mustang. With four bedrooms, a pocket study, and three full bathrooms, this home offers a thoughtful layout tailored for modern family living. The vaulted living room and kitchen create a spacious, airy feel — blending craftsmanship, function, and timeless appeal.

Home Features:

  • 2,261 sq. ft. of expertly crafted living space
  • Four bedrooms plus a convenient pocket study
  • Three full bathrooms
  • Vaulted ceilings in the living room and kitchen
  • Spacious three-car garage
  • Custom cabinetry and quartz countertops throughout
  • Whirlpool kitchen appliances
  • Energy-efficient Lennox HVAC system
  • Zip Board Sheathing with built-in moisture and insulation barrier
  • Class 4 impact-resistant StormFlex shingles for superior protection
Preview the future 10308 SW 50th custom home — a stunning 4-bedroom design with vaulted living spaces and timeless curb appeal.

Ready to Build? Dustin's Here to Help.

"No sales pressure. No middlemen. Just a direct line to me — the builder who oversees your home from the first sketch to the final walkthrough."

Dustin Merryfield

Dustin Merryfield | Founder & Builder

 

 

 

 

 

 

 

 

 

 

 

 

 

 

 

 

 

 

 

 

 

 

 

 

 

 

 

 

 

 

 

 

 

 

 

 

 

 

 

 

 

 

 

10405 SW 50 Mustang, OK 73064

Move in Ready

  • 2246 sq ft vn  Estimated $443k
  • 4 bed  /2.5 baths
  • Foam insulation,class 4 shingles, quartz, full gutters, laundry room , catherdeal thru living room and kitchen
  • 2072 sq ft vn  $400k
  • 3 bed and study or 4 bed
  • 2.5 baths
  • Foam insulation,class 4 shingles, quartz, full gutters, laundry room access thru master,mud bench, walk in pantry,sprinkler

10357 SW 50 Mustang, OK 73064

Pending

  • 2264 sq ft vn $448k
  • 4 bed and pocket office
  • 3 baths
  • Foam insulation,class 4 shingles, quartz, full gutters, laundry room access thru master,mud bench, walk in pantry,sprinkler, black metal roof overhangs

10424 SW 51 Mustang, OK 73064

Sold